- Auftraggeber
Saarländische Landesregierung vertreten durch das Landesamt für zentrale Dienste - Amt für Bau und Liegenschaften
- Standort
Saarbrücken
- Planungsumgriff
500 m²
- Partner
Krüger Architekten, Saarbrücken
- Projektstart
2009
- Fertigstellung
2010
- Leistung
Objektplanung Lph 2-9
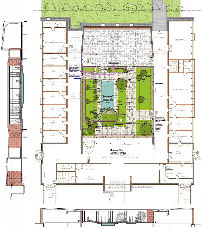
Atrium der Staatskanzlei Saarbrücken
Sanierung des denkmalgeschützten Innenhofes
- Projektdaten
- Auftraggeber
Saarländische Landesregierung vertreten durch das Landesamt für zentrale Dienste - Amt für Bau und Liegenschaften
- Standort
Saarbrücken
- Planungsumgriff
500 m²
- Partner
Krüger Architekten, Saarbrücken
- Projektstart
2009
- Fertigstellung
2010
- Leistung
Objektplanung Lph 2-9
- Auftraggeber

Atrium mit Blick auf die Ludwigskirche, Foto: Barbara Heinz
Die „Grüne Mitte“ der Staatskanzlei
Im Zuge der Sanierung des denkmalgeschützten Gebäudeensembles am Ludwigsplatz wurde unter anderem der aus den 50er Jahren stammende Gebäudekomplex der Staatskanzlei als eigener Bauabschnitt behandelt. Dabei wurde auch das ca. 500 m² große Atrium nach denkmalpflegerischen Gesichtspunkten ertüchtigt. Der vollständig unterbaute Innenhof wird von einer umlaufenden bodentiefen Glasfassade umschlossen, die stets den Blick auf die „Grüne Mitte“ des Gebäudeensembles freigibt. Die bauzeitliche Technik der 50er Jahre, wie die versenkbaren Verglasungen zum Innenhof, wurde durch die Architekten Krüger instand gesetzt. So entsteht durch die bodentiefe Absenkung ein großzügiges Foyer, welches die lebendige Atmosphäre des grünen Kleinodes ins Gebäudeinnere einfließen lässt.
Denkmalpflege
Inspiration zur denkmalgerechten Sanierung konnte durch historische Bildaufnahmen gewonnen werden. Hieraus ließen sich die originalgetreuen Motive der Pflanzen- und Materialverwendung ableiten. Die Sandsteinbeläge wurden nach historischem Vorbild im Römischen Verband hergestellt; Treppen und Mauern ebenfalls nach denkmalpflegerischen Aspekten restauriert. Das Wasserbecken und dessen Technik wurden modernisiert und unter Flur gesetzt. Beleuchtung und Stromversorgung im Innenhof wurden an die Bedürfnisse der Nutzer angepasst sowie die vorhandene Bepflanzung mit mehrstämmigen Schirmgehölzen und einer gärtnerischen Anreicherung aus Kleingehölzen, Stauden, Gräsern und Zwiebelpflanzen ergänzt. Über die Jahre hinzugekommene, denkmalpflegerisch nicht nachvollziehbare Elemente wurden entfernt.
historische Aufnahmen der Staatskanzlei, Fotos aus dem Archiv des Landesdenkmalamtes Saarland
Blick ins Atrium, Foto: Barbara Heinz
Herr Kist, ich gehe fest davon aus, dass wir im Zeitplan sind.
damaliger Ministerpräsident Peter Müller anlässlich des bevorstehenden Besuchs des Bundespräsidenten Christian Wulff im Mai 2010
Materiallieferungen 2010
Fliegende Bäume
Eine besondere Herausforderung im Rahmen der Umsetzung war die Bauablaufplanung im laufenden Betrieb. So wurde die komplette Logistik, ohne die Inanspruchnahme von Innenräumen, über die Dachflächen gelöst. Die Materialanlieferungen sowie -abholungen erfolgten „just in time“ per mobilen Hubfahrzeugen.
Sommerblüte Atrium, Foto: Barbara Heinz


Foto: Barbara Heinz























